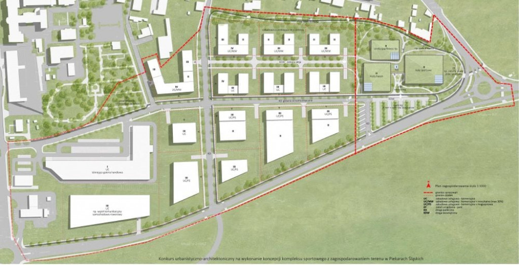
W Piekarach Śląskich rozstrzygnięto konkurs na koncepcję architektoniczną kompleksu sportowego z krytym basenem. Wygrała koncepcja, którą przygotowała Domino Grupa Architektoniczna Wojciech Dunaj ze Szczecina. Jej autorzy to Wojciech Dunaj, Rafał Stemporowski, Anita Dunaj, Izabela Chruściel i Anna Drygalska. Doceniono atrakcyjne i kameralne wkomponowanie obiektów w otaczającą zabudowę oraz intuicyjne dla użytkowników rozwiązania funkcjonalne. Drugie miejsce zajęli JSK Architekci sp. z o. o. z Warszawy, a trzecie HyperProject Anna Kowal z Dębicy. [ZT]34347[/ZT]
2022-01-14 17:25:37