piekarski.pl

Zamknij

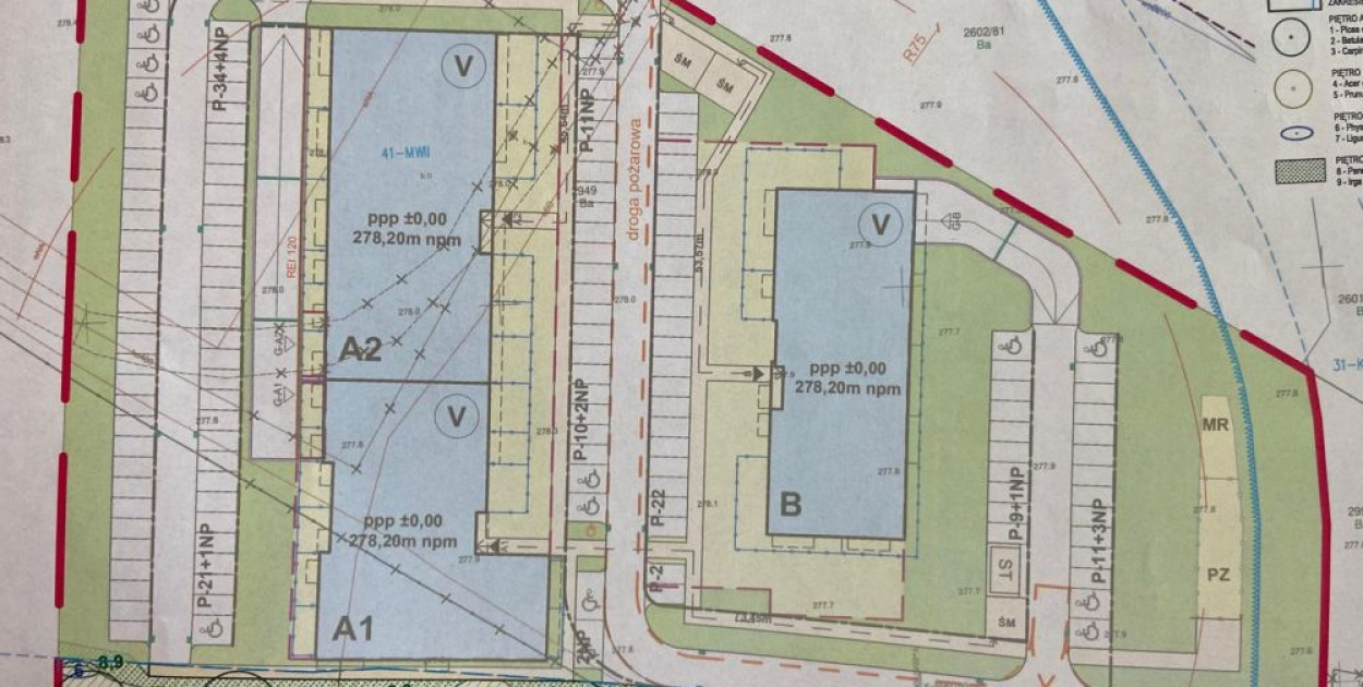
Ponad 100 mieszkań na wynajem

eka 15:31, 14.01.2026 Aktualizacja: 15:37, 14.01.2026
Ponad 100 mieszkań na wynajem. Trwa procedura

SIM, czyli Społeczna Inicjatywa Mieszkaniowa, to program budownictwa społecznego, w ramach którego powstają mieszkania na wynajem o umiarkowanym czynszu. Inicjatywa ta ma na celu zapewnienie dostępu do przystępnych cenowo lokali mieszkalnych dla osób i rodzin, których dochody nie pozwalają na zaciągnięcie kredytu hipotecznego, ale są zbyt wysokie na mieszkania komunalne.

Czytaj także:

Tarnowskie Góry. Konkurs młodej przedsiębiorczości

W tych sołectwach nie urodziło się ani jedno dziecko

Zmarł plastyk z Tarnowskich Gór. Jutro pogrzeb

Lotnisko w Pyrzowicach. Mam dynamit w bagażu!

Kalety. Wylądował w przydrożnym rowie

Staszic i Plastyk najlepsi w rankingu

Tarnowskie Góry. Interwencja strażaków na ul. Opolskiej

Roztańczony WF. Kto stanął na podium? [ZDJĘCIA]

Straż Miejska w Tarnowskich Górach rekrutuje

PONE 2026 w gminie Koszęcin. Do 10 tys. zł dopłaty do wymiany kotła

Ranking szkół. Jak wypadły nasze?

(eka)
Dalszy ciąg materiału pod wideo ↓

Co sądzisz na ten temat?

podoba mi się 0
nie podoba mi się 0
śmieszne 0
szokujące 0
przykre 0
wkurzające 0
Nie przegap żadnego newsa, zaobserwuj nas na
GOOGLE NEWS
facebookFacebook
twitter
wykopWykop
0%